Dorpsstraat 27 A
280 m2 winkelruimte te huur in Putten
Kenmerken
| Huurprijs | € 28.000 /jaar |
| Functie | Winkelruimte |
| Wijk / Buurt | Putten-Centrum |
1 eenheid beschikbaar
1 eenheid beschikbaar
- Eenheid
- Oppervlakte
- Huurprijs
- Gebruik
- 1
- 280 m2
- € 28.000 /jaar
- Winkelruimte
| OPPERVLAKTE | 280 m2 |
| GEBRUIK | Winkelruimte |
Omschrijving
Omschrijving
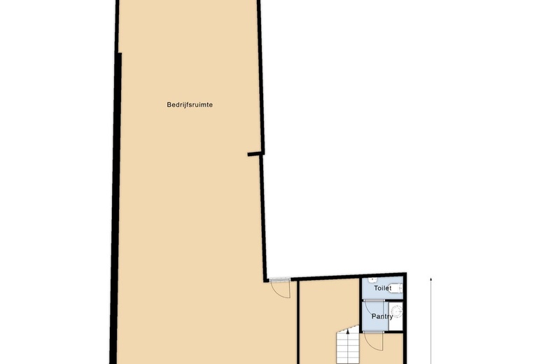
Op A1-locatie gelegen WINKELRUIMTE in het centrum van Putten. Het winkelcentrum van Putten heeft een diversiteit aan publiekstrekkers met o.a. HEMA, Trekpleister, Blokker, diverse kledingwinkels en horecagelegenheden. De winkel heeft een frontbreedte van circa 5 meter en een beschikbare vloeroppervlakte van circa 192 m² winkelruimte en circa 88 m² magazijnruimte op de eerste verdieping. Gratis parkeren is mogelijk op één van de vele parkeerterreinen in het centrum van Putten (blauwe kaart).
Op iedere woensdagochtend is er een weekmarkt op het Kerkplein, direct achter de Dorpsstraat, welke markt bekend staat als één van de grotere markten in de omgeving en daardoor veel bezoekers trekt. In de zomermaanden zien we vaak het inwonersaantal van Putten verdubbelen als gevolg van de aanwezigheid van meerdere recreatieparken in de omgeving. ObjectgegevensWinkelruimte gelegen aan de Dorpsstraat 27A te Putten. Beschikbare bruto vloeroppervlakte
Winkelruimte begane grond circa 192 m².
Magazijnruimte eerste verdieping circa 88 m². Opleveringsniveau
In huidige staat, doch voorzien van:
- meterkast met aansluitingen op de nutsvoorzieningen tot de meters;
- winkelpui;
- pantry en toilet. Parkeervoorzieningen
Voldoende gratis parkeergelegenheid in de nabije omgeving (blauwe kaart). Bestemming
Bestemmingsplan 'Putten Centrum' met de enkelbestemming 'centrum 1'. HUURVOORWAARDEN
Huurprijs
€ 28.000,- per jaar, excl. BTW. Huurtermijn
5+5 jaar. Opzegtermijn
Twaalf (12) volle kalendermaanden. Huurbetaling
Per maand vooruit. Aanvaarding
Beschikbaar vanaf 1 januari 2026. Zekerheidsstelling
Bankgarantie of waarborgsom ter grootte van 3 maanden huur te vermeerderen met BTW. Huurovereenkomst
Volgens ROZ-Model. Huurprijsindexering
Jaarlijks, voor het eerst één jaar na ingangsdatum huurovereenkomst, op basis van de wijziging van het maand prijs indexcijfer volgens de consumentenprijsindex (CPI) reeks alle huishoudens (2015 = 100), gepubliceerd door het Centraal Bureau voor Statistiek (CBS). DOWNLOAD DE BROCHURE OP ONZE WEBSITE MNM.NL. Alle informatie is geheel vrijblijvend en onder voorbehoud. Hieraan kunnen geen rechten worden ontleend.