Dwingelstraat 8
452 m2 winkelruimte te huur in Arnhem
Kenmerken
| Huurprijs | € 59.000 /jaar |
| Functie | Winkelruimte |
| Onderhoud buiten | Uitstekend |
| Onderhoud binnen | Uitstekend |
| Wijk / Buurt | Markt |
1 eenheid beschikbaar
1 eenheid beschikbaar
- Eenheid
- Oppervlakte
- Huurprijs
- Gebruik
- 1
- 452 m2
- € 59.000 /jaar
- Winkelruimte
| OPPERVLAKTE | 452 m2 |
| GEBRUIK | Winkelruimte |
Omschrijving
Omschrijving
Het betreft een representatieve winkelruimte aan de Dwingelstraat in het centrum van Arnhem. De winkelruimte bestaat uit twee verdiepingen met een totale oppervlakte van ca. 452 m². Omliggende huurders zijn o.a. de flagship store van New Yorker, The Sting, Costes, Hema, C&A, Sostrene Grene, etc. De winkel ligt in het in 2023 heropende Musiskwartier.
LiggingDe Dwingelstraat ligt direct achter de drukke Roggestraat, waar bekende winkels zoals The Sting, Costes, Kruidvat en ICI Paris te vinden zijn. De straat grenst ook aan het Brouwersplein, een levendig plein met onder andere winkels als Action, Hema en C&A. Bereikbaarheid
Auto
Het object is goed bereikbaar met eigen vervoer. In de directe omgeving bevindt zich parkeergarage Musis met ongeveer 700 parkeerplaatsen. Openbaar vervoer
Op circa 1.000 meter loopafstand is het NS Station Arnhem Centraal gelegen. Bushalte Velperplein bevindt zich op slechts enkele minuten lopen, met meerdere buslijnen die regelmatige verbindingen aanbieden naar belangrijke knooppunten in de stad, zoals NS Station Arnhem Centraal en andere grote wijken. Vloeroppervlakte
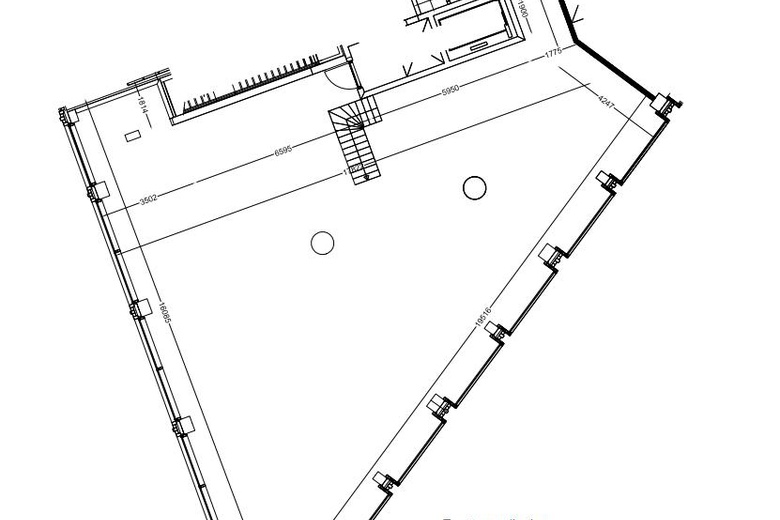
Het pand heeft een oppervlakte van circa 452 m² b.v.o., als volgt verdeeld:
Begane grond - ca. 206 m² b.v.o.
Eerste verdieping - ca. 246 m² b.v.o.
Totaal - ca. 452 m² b.v.o. Opleveringsniveau
Het object zal worden opgeleverd in de huidige staat, vrij van huur en gebruik en ontdaan van inventaris. Parkeren
Voldoende (betaalde) parkeergelegenheid in parkeergarage Musis. Huurprijs
€ 59.000,- per jaar, te vermeerderen met BTW, promotie- en servicekosten. Servicekosten
Voorschot servicekosten: € 500,- per maand, te vermeerderen met BTW.
Promotiebijdrage: € 420,- per maand, te vermeerderen met BTW. Het pand heeft een eigen elektra-aansluiting, eigen aansluiting stadsverwarming en eigen water meter. Bestemming
De bestemming is onder andere:
- Dienstverlening;
- Ambachtelijke bedrijven;
- Detailhandel. Voor een nadere toelichting op het bestemmingsplan verwijzen wij u graag naar de website van het Omgevingsloket. Energielabel
Het object beschikt over energielabel B. Heeft dit pand uw interesse gewekt? Dan nodigen wij u van harte uit het pand eens van binnen te komen bekijken!
Bijlagen
Aanbevolen voor u
Bekijk
winkelruimte in Arnhem
of bekijk deze panden: