Hamstraat 37 610 m2 winkelruimte te koop in Roermond
Kenmerken
| Prijs | € 575.000 |
| Functie | Winkelruimte |
| Wijk / Buurt | Binnenstad |
1 eenheid beschikbaar
1 eenheid beschikbaar
Omschrijving
Omschrijving
Gelegen in het centrum van Roermond aan de Hamstraat bieden wij u dit beleggingsobject namens onze opdrachtgever te koop aan. Informatie omtrent de huidige huurder is op aanvraag.
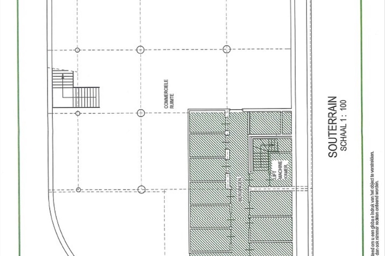
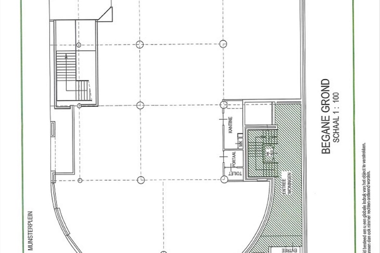
Het betreft een grote winkelruimte verdeeld over het souterrain (ca. 270 m²) en de begane grond (ca. 340 m²) en is gebouwd omstreeks 1997 / 1998.
De directe omgeving bestaat hoofdzakelijk uit commerciële ruimten met bovengelegen woningen. De monumentale binnenstad kenmerkt zich door een zeer ruim winkel- en horeca aanbod, inclusief het Designer Outlet Center op slechts 5 minuten loopafstand. Tevens beschikt de binnenstad over diverse monumentale panden en kerken.
Het object is goed bereikbaar, zowel met eigen vervoer als met het openbaar vervoer. Via de diverse uitvalswegen van en naar Roermond zijn de provinciale wegen (N280) en de rijkswegen (A73 en A2) snel te bereiken. Bushaltes en het NS station ligt op circa 3 minuten loopafstand.
Parkeren:
In de omgeving zijn diverse parkeerplaatsen- en garages.
Metrage gegevens:
- Winkelruimte souterrain van ca. 270 m²;
- Winkelruimte begane grond van ca. 340 m².
Opleveringsniveau:
- Dubbele beglazing;
- Gedeeltelijk aluminium kozijnen.
Bestemmingsplan:
Het onderhavige perceel valt onder de bepalingen van het bestemmingsplan ‘Binnenstad Roermond’. De bestemming betreft ‘Centrum – 1’.
Indeling:
Souterrain:
Winkelruimte met ingebouwde bergruimte en ingebouwde personeelsruimte met pantry.
Begane grond:
Entree. Winkelruimte met magazijn/opslag. Portaal met separaat toilet. Kantine met meterkast.
Aanvaarding:
In overleg.
Bezichtiging:
Uitsluitend na afspraak met ons kantoor.
Informatie:
Wij hebben getracht middels deze zorgvuldig samengestelde documentatie u zo uitgebreid mogelijk te informeren. Desondanks kunnen hieraan geen rechten worden ontleend. Slechts de feitelijke situatie geeft u een juist beeld.
Kadastrale gegevens:
Kadastrale gemeente : Roermond
Sectie : D
Nummer : 5193
Perceeloppervlak : 350 m²
Bereikbaarheid
- Godsweerdersingel 4 min. lopen
- Roermond 4 min. lopen
- Busstation, Stationsplein halte I 5 min. lopen
- Wilhelminaplein 6 min. lopen
- Outlet Center/Stadskantoor 6 min. lopen