Heuvelstraat 96
362 m2 winkelruimte te huur in Tilburg
Kenmerken
| Status | Verhuurd onder voorbehoud |
| Huurprijs | € 6.625 /maand |
| Functie | Winkelruimte |
| Onderhoud buiten | Goed |
| Onderhoud binnen | Uitstekend |
| Wijk / Buurt | Centrum |
1 eenheid beschikbaar
1 eenheid beschikbaar
- Eenheid
- Oppervlakte
- Huurprijs
- Gebruik
- 1
- 362 m2
- € 6.625 /maand
- Winkelruimte
| OPPERVLAKTE | 362 m2 |
| GEBRUIK | Winkelruimte |
Omschrijving
Omschrijving
Verrassend veelzijdige winkelruimte op A-locatie aan de Heuvelstraat 96 in het centrum van Tilburg. De winkel heeft een courante maat van 207 m² VVO. Door de goede ligging aan de belangrijkste winkelstraat van Tilburg, biedt deze unit niet alleen kansen voor landelijke retailers, maar juist ook voor lokale en regionale ondernemers die de stap naar de Heuvelstraat nog niet gezet hebben. Het opvallende front van 6,5 meter breed, is een visitekaartje voor iedere ondernemer.
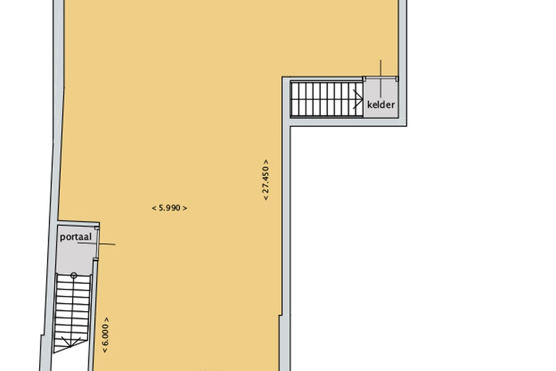
Oppervlakte
207 m² VVO winkelruimte op de begane grond
61 m² VVO personeelsruimte en opslag op de eerste verdieping
64 m² VVO opslag op de tweede verdieping
30 m² VVO kelder
362 m² VVO Totaal
Ligging en bereikbaarheid
De winkel bevindt zich aan de hoofdwinkelstraat van het centrum Tilburg, direct naast Go- Brittain. Dit gedeelte van de Heuvelstraat huisvest tal van landelijke en lokale ondernemers, zoals Amac, Shoeby, My Jewellery, Holland & Barrett, Dille & Kamille, vanHaren en So Low. Omliggende retailers zorgen ervoor dat de toekomstige winkelier van deze ruimte voldoende passanten krijgt.
Parkeren
Op korte loopafstand van de winkel zijn ruim voldoende parkeerplaatsen beschikbaar.
Bestemmingsplan
De winkel heeft een centrumbestemming waardoor niet alleen detailhandel, maar ook een breed scala aan andere activiteiten zijn toegestaan. Zoals ambachtelijke bedrijven, dienstverlening, kantoor, maatschappelijk, sport en recreatie. Voor deze unit biedt dit kansen aangezien de bestemming niet alleen geldt voor de begane grond, maar ook voor de eerste verdieping. Verschillende functies kunnen hierdoor op deze locatie gecombineerd worden.
Opleveringsniveau
De unit wordt casco verhuurd. Echter wordt in de huidige staat opgeleverd. De unit is op de begane grond als winkel ingericht met een etalage, bestaande vloerafwerking en een systeemplafond met verlichting. Achterin de ruimte ligt een separate pantry met een toiletruimte. De verdiepingen en de kelder zijn middels een trap bereikbaar. Deze worden momenteel gebruikt als opslagruimte en kunnen naar eigen inzicht en behoefte nader afgewerkt en ingericht worden. De winkel beschikt over een warmtegordijn en een airco installatie.
Huurcondities
Huurprijs: € 6.625,- per maand excl. BTW
Huurtermijn: Uitgangspunt is 5 + 5 jaar
Servicekosten: N.V.T. De winkel beschikt over een eigen aansluiting voor elektra, gas en water.
Aanvaarding: In overleg. Momenteel is de winkel nog verhuurd aan Le Paris Fashion. De huidige huurder werkt graag mee aan een snelle en soepele overdracht van de winkel als er een geschikte kandidaat gevonden is.
Opzegtermijn:12 maanden
Zekerheidstelling: Bankgarantie ter hoogte van 3 maanden huur inclusief BTW.
Huurindexering: Jaarlijks overeenkomstig het maand prijsindexcijfer volgens het consumentenprijsindexcijfer (CPI) reeks CPI alle huishoudens (2015=100) gepubliceerd door het Centraal Bureau voor de Statistiek (CBS). De huurprijs zal nimmer minder bedragen dan de huurprijs van het voorafgaande jaar. Indexatie voor het eerst 12 maanden na huur ingangsdatum en zo vervolgens jaarlijks.
BTW: Ja, is van toepassing
Goedkeuring
Het bovenstaande is onder finaal voorbehoud van de eigenaar.
Disclaimer: Ondanks dat deze publicatie met de grootst mogelijke zorgvuldigheid is samengesteld is de Online Bedrijfsmakelaar BV niet aansprakelijk te stellen voor onjuiste of onvolledige informatie die in deze publicatie vermeld staan. Aan deze gegevens kunnen geen rechten worden ontleend.
====================
Alle beschikbare informatie ontvangen?
Benieuwd naar alle beschikbare informatie over deze winkelruimte? Vraag dan nu, onder de grote contactbutton, de gratis objectbrochure van Heuvelstraat 69 in Tilburg aan en ontvang de objectbrochure binnen 5 minuten in uw mailbox. Uiteraard kunt u ook direct een geheel vrijblijvende bezichtiging met de beheerder van de winkelruimte inplannen.