Kerksingel 27
169 m2 winkelruimte te koop in Berkel en Rodenrijs
Kenmerken
| Status | Verkocht onder voorbehoud |
| Prijs | € 369.500 k.k. |
| Functie | Winkelruimte |
| Onderhoud buiten | Uitstekend |
| Onderhoud binnen | Uitstekend |
| Wijk / Buurt | Berkel Dorp |
1 eenheid beschikbaar
1 eenheid beschikbaar
Omschrijving
Omschrijving
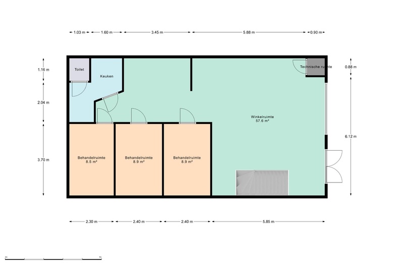
Immobilia biedt met trots een unieke multifunctionele ruimte midden in het centrum van Berkel en Rodenrijs aan. De ruimte is in 2022 grondig verbouwd en uitgebreid met maar liefst 80m², waardoor het totale oppervlakte nu 169m² bedraagt. De ruimte is verdeeld over twee verdiepingen en afgewerkt met hoogwaardige materialen, wat zorgt voor een stijlvolle en moderne uitstraling. Te gebruiken als winkel-, praktijk-, of kantoorruimte.
In de directe omgeving in het centrum zijn o.a. een Kruidvat, Action, Hoogvliet en Aldi gevestigd, alsmede kleinschalige speciaalzaken gevestigd die passen in de gemoedelijke sfeer die al jaren zo kenmerkend is voor Berkel en Rodenrijs. Parkeren kan gratis op diverse plekken rondom het centrum, alsmede op de parkeerplaats waar een blauwe zone geldt. Ben je op zoek naar een winkel-, praktijkruimte of kantoorruimte, direct te betrekken en met een luxe uitstraling? Zoek dan niet langer en kom direct bezichtigen! Begane grond:Bij binnenkomst betreedt tref je een moderne winkelruimte, waarin momenteel ook een schoonheidssalon is gevestigd. De salon beschikt over drie behandelkamers van elk circa 9m², ideaal ingericht voor diverse schoonheidsbehandelingen. Allen voorzien van een keukenblok met spoelbak en wateraansluiting. De tussengelegen ruimte is tevens voorzien van een aparte wateraansluiting voor bijvoorbeeld een kappersstoel en tevens met een klein keukenblok voorzien van een spoelbak en wateraansluiting. Aan de achterzijde tref je een bergruimte met toilet, pantry en tevens aansluitingen voor een wasmachine en een droger. Het toilet is in zijn geheel betegeld met een witte wandtegel en een grijze vloertegel. Trap naar de kelder. Kelder:
Mooie ruimte van ca. 77m2 met een stahoogte van ca. 2.20 meter en een betonnen vloer. Ideaal te gebruiken voor multifunctionele doeleinden. Bijzonderheden:
- Drie (3) behandelkamers van ca. 9m2 per ruimte. Afmeting 2.40 x 3,60 meter.
- De begane grond is voorzien van een betonlook pvc-vloer.
- Gelegen in het centrum van Berkel en Rodenrijs.
- Kelderruimte van ca. 77m2 met stahoogte van ca. 2,20 meter. ---
Frontbreedte:
Ca. 7 meter. Parkeren:
Parkeren kan gratis op diverse plekken rondom het centrum, alsmede op de parkeerplaats waar een blauwe zone geldt. Staat van oplevering:
De winkelruimte wordt in overleg of casco staat opgeleverd. Servicekosten:
€ 975,- per jaar VvE bijdrage. Leveringsdatum:
In overleg alsmede ten overstaan van een door koper aan te wijzen notaris. Waarborgsom:
Verkoper vraagt bij de ondertekening van een koopovereenkomst een waarborgsom op de derden rekening van de notaris van 10% van koopsom. --- Verhuur: Huurspecificaties:
Huurprijs:
€ 26.100,- per jaar excl. btw. Huurtermijn:
In overleg met verhuurder. Huuringangsdatum:
Beschikbaar per direct. Huurprijsherziening:
Jaarlijks op basis van de CPI-index van het CBS Huurbetaling:
Per maand vooruit. Nutsvoorzieningen:
Huurprijs excl. G/W/L Servicekosten:
€ 50,- per maand excl. BTW. Bankgarantie/waarborgsom:
Drie maanden huur excl. BTW Huurovereenkomst:
Conform model ROZ. BTW:
Verhuurder wenst te opteren voor BTW-belaste huur en verhuur. Ingeval huurder de BTW niet kan verrekenen zal de huurprijs worden verhoogd ter compensatie van de gevolgen van het vervallen van de mogelijkheid om te opteren voor BTW-belaste huur.
--- Toelichting NEN 2580:
De meetinstructie is gebaseerd op NEN 2580. De meetinstructie is bedoeld om een meer eenduidige manier van meten toe te passen voor het geven van een indicatie van de gebruiksoppervlakte. De meetinstructie sluit verschillen in meetuitkomsten niet volledig uit, door bijvoorbeeld interpretatieverschillen, afrondingen of beperkingen bij het uitvoeren van de meting. Bijgevoegde plattegronden zijn ingemeten volgens de meetinstructie. Alle verstrekte informatie moet beschouwd worden als een uitnodiging tot het doen van een bod of om in onderhandeling te treden. Er kunnen geen rechten worden ontleend aan deze informatie