Resultaten laden ...

Princestraat 30 135 m2 winkelruimte te koop in Katwijk

Kenmerken

Prijs € 532.500 k.k.
Functie Winkelruimte
Wijk / Buurt Centrum

TE KOOP

Princestraat 30 te Katwijk ()

ALGEMEEN

Het betreft hier een representatieve en hoogwaardige winkelruimte van in totaal ca. 135 m² (incl. ca. 35 m² kelderruimte), gelegen in het hart van het kernwinkelgebied van Katwijk aan Zee, nabij de Boulevard met al haar faciliteiten. Katwijk beschikt over ruim 63.000 inwoners en heeft een zeer groot verzorgingsgebied. Het centrum van Katwijk aan Zee omvat meer dan 100 winkels en beschikt over een actieve winkeliersvereniging. Zo is er tijdens de zomermaanden elke dinsdag de jaarlijkse Toeristenmarkt en worden jaarlijks de Visserijdagen georganiseerd. Ook worden er tijdens de feestdagen speciale (thema) koopavonden georganiseerd. Een dagje winkelen in Katwijk aan Zee is goed te combineren met vele bezienswaardigheden zoals het Katwijks Museum en het strand. In de directe omgeving van het object zijn verder onder andere Holland & Barrett, HEMA, Rituals, Norah, Douglas, Scapino, Haasnoot Mode, Vishandel Schuitemaker, Hotel Noordzee, Saton Optiek, alsmede diverse horecafaciliteiten gevestigd. De winkelruimte is momenteel tijdelijk verhuurd tot en met 31 oktober 2026 en kan vanaf 1 november 2026 vrij van huur en gebruik worden opgeleverd. Huidige huurgegevens: op aanvraag. Unieke kans om een winkelruimte in het winkelcentrum van Katwijk te kopen voor eigen gebruik of als beleggingsobject!

Bouwjaar: vijftiger jaren. Enkele jaren geleden is het onroerend goed geheel gemoderniseerd.

BEREIKBAARHEID

Het centrum is per eigen vervoer goed bereikbaar via de Provinciale weg N206 en de Zeeweg. Rijksweg A44 is op slechts 10 minuten rijafstand gelegen.

Bereikbaarheid per openbaar vervoer is als goed te kenmerken. Diverse bushalten bevinden zich in de directe omgeving van het object.

LOCATIE / LIGGING

Winkelcentrum

Woonomgeving

LOCATIE / VOORZIENINGEN

Snelwegafrit

Op 5000 m of meer

Afstand tot NS Station

Op 5000 m of meer

Winkel voorziening

Op minder dan 500 m

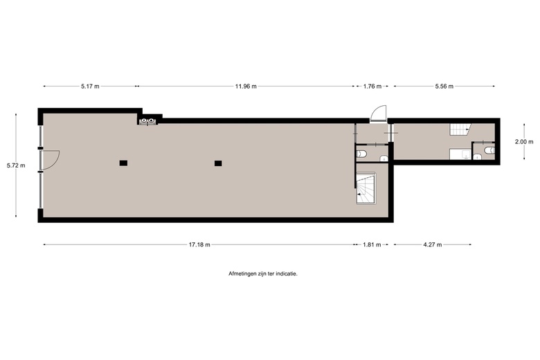
OPPERVLAKTE / INDELING

De winkelruimte heeft in totaal een oppervlakte van ca. 135 m² en is als volgt ingedeeld:

Begane grond: ca. 100 m² winkelruimte;

Kelderruimte: ca. 35 m² opslagruimte.

Frontbreedte: 5,5 meter.

PARKEERMOGELIJKHEDEN

Betaald parkeren op openbaar terrein in de directe omgeving. Op loopafstand van het object is de (ondergrondse) parkeergarage aan de Boulevard gelegen met 663 parkeerplaatsen.

OPLEVERINGSNIVEAU

In de huidige staat ‘as is where is’.

KOOPSOM

€ 532.500,00 k.k.

OMZETBELASTING

Het betreft hier een niet met BTW belaste verkoop.

AANVAARDING

In overleg.

COURTAGE

Mocht door bemiddeling van Basis Bedrijfshuisvesting B.V. een transactie tot stand komen, zult u hiervoor geen kosten of courtage verschuldigd zijn.

KADASTRALE GEGEVENS

Gemeente: Katwijk

Sectie: A

Nummer: 14520 A12, 14929 & 14484

BIJZONDERHEDEN

Elke transactie behoeft de nadrukkelijke goedkeuring van eigenaar.

OVERIG

Bezichtigingen uitsluitend op een daartoe afgesproken tijdstip met Basis Bedrijfshuisvesting B.V.

Bereikbaarheid

Tram, bus, metro
  • Nieuw Brittenburg 3 min. lopen
  • Vuurbaak 6 min. lopen
  • Centrum 6 min. lopen
  • Drieplassenweg 8 min. lopen
  • Duindoornlaan 9 min. lopen

Bijlagen

De aanbieder van dit object heeft een PDF Brochure beschikbaar gesteld.

Vraag brochure aan