Resultaten laden ...

Spilstraat 6

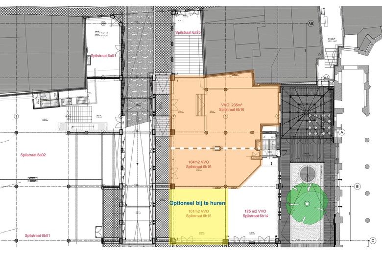
339 m2 winkelruimte te huur in Maastricht

Kenmerken

Huurprijs Prijs op aanvraag
Functie Winkelruimte
Onderhoud buiten Goed
Onderhoud binnen Goed
Wijk / Buurt Binnenstad

De voor verhuur beschikbare winkelruimte maakt onderdeel uit van het overdekte Winkelcentrum Entre Deux . Een van de beste winkelcentra in Nederland, in 2008 zelfs uitgeroepen tot beste van Europa.

Entre Deux is centraal gelegen tussen het Vrijthof en de Markt en huisvest hoogwaardige winkels op gebied van kleding, mode, schoeisel, food & drinks, etc.

In Entre Deux zijn toonaangevende filiaalbedrijven gevestigd zoals o.a. Zara, Jack & Jones, Hollister, NewYorker, Urban Outfitters, ONLY, Vila , Hans Anders en Blokker.

De eeuwenoude Dominicanenkerk is een ware publiekstrekker welke direct grenst aan Entre Deux.

De hoofdtoegangen bevinden zich aan het Domicanerkerkplein en aan de Spilstraat.

Entre Deux maakt nadrukkelijk onderdeel uit van een gezellig dagje Maastricht voor bezoekers vanuit Nederland, Duitsland en België.

Ligging en bereikbaarheid/ parkeren

Parkeergarage Het Vrijthof of parkeergarage Mosae Forum zijn in de directe nabijheid.

Entre Deux ligt op loopafstand van het centraal station.

Bestemmingsplan

Detailhandel (bestemmingsplan "Centrum” gemeente Maastricht)

Opleveringsniveau

- Casco unit (zie foto's)

- Frontbreedte winkelruimte: circa. 19 meter

- Oppervlakte winkelruimte: circa. 339 m² BVO

- Optioneel is de mogelijkheid aanwezig om de winkelruimte uit te breiden naar circa. 440 m²

Huurcondities

Huurprijs: Op aanvraag

Huurtermijn: 5 jaar

Servicekosten: voorschot servicekosten en promotie Winkelcentrum Entre Deux

Aanvaarding: In overleg, per direct

Opzegtermijn: 12 maanden

Promotiekosten ( promotie winkelcentrum Entre Deux): Op aanvraag

Zekerheidstelling: Waarborgsom: ter grootte van 3 maanden huur inclusief BTW en voorschot service- en promotiekosten.

Huurindexering: Jaarlijks overeenkomstig het maand prijsindexcijfer volgens het consumentenprijsindexcijfer (CPI) reeks CPI alle huishoudens (2015=100) gepubliceerd door het Centraal Bureau voor de Statistiek (CBS). De huurprijs zal nimmer minder bedragen dan de huurprijs van het voorafgaande jaar. Indexatie per 1 januari van het eerstvolgende kalenderjaar.

BTW: Ja, is van toepassing.

Goedkeuring

Het bovenstaande is onder finaal voorbehoud van de eigenaar.

Disclaimer: Ondanks dat deze publicatie met de grootst mogelijke zorgvuldigheid is samengesteld is de Online Bedrijfsmakelaar BV niet aansprakelijk te stellen voor onjuiste of onvolledige informatie die in deze publicatie vermeld staan. Aan deze gegevens kunnen geen rechten worden ontleend.

====================

Alle beschikbare informatie ontvangen?

Benieuwd naar alle beschikbare informatie over het pand? Vraag dan nu, onder de grote contactbutton, de gratis objectbrochure van Weg naar Spilstraat 6 in Maastricht aan en ontvang de objectbrochure binnen 5 minuten in uw mailbox. Uiteraard kunt u ook direct een geheel vrijblijvende bezichtiging met de beheerder van het pand inplannen.

Bijlagen

De aanbieder van dit object heeft een PDF Brochure beschikbaar gesteld.

Vraag brochure aan