Terra cottaplein 6 51 - 189 m2 winkelruimte te huur in Maastricht
Kenmerken
| Functie | Winkelruimte |
| Wijk / Buurt | Pottenberg |
| Frontbreedte | 900 cm |
| Branchebeperking | Nee |
| Horeca toegestaan | Nee |
| Publieksgerichte dienstverlening | Nee |
| Detailhandel | Nee |
1 eenheid beschikbaar
1 eenheid beschikbaar
- Eenheid
- Oppervlakte
- Huurprijs
- Gebruik
- 1
- Vanaf 51 m2 tot 189 m2
- € 150,00 m²/jaar
- Winkelruimte
| OPPERVLAKTE | Vanaf 51 m2 tot 189 m2 |
| HUURPRIJS | € 150,00 m²/jaar |
| GEBRUIK | Winkelruimte |
Omschrijving
Omschrijving
AANGEBODEN WORDEN TWEE VERSCHILLENDE RUIMTEN / MOMENTEEL NOG IN NIEUWBOUWFASE
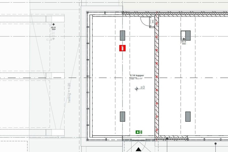
Op de begane grond van het nieuwbouwcomplex „het Poortgebouw” komen twee commerciële ruimten van respectievelijk circa 189 m² (ruimte I) en 51 m² (ruimte II) beschikbaar. Deze ruimten wordt opgeleverd in een casco staat, voorzien van een meterkast en alle benodigde aansluitingen. De kleine unit wordt voorzien van een systeemplafond. De verdere afbouw van de ruimte kan naar wens van huurder worden ingericht.
In de wijk Pottenberg wordt momenteel hard gewerkt aan het Poortgebouw, een modern nieuwbouwcomplex dat naar verwachting in de zomer van 2026 wordt opgeleverd. Op de verdiepingen boven de commerciële ruimte worden 56 levensloopbestendige woningen gerealiseerd. In de aangrenzende units vestigen zich onder andere een fysiotherapeut en een tandarts. Aan de voorzijde van het object bevinden zich op maaiveld openbare parkeervoorzieningen.
LOCATIE
Pottenberg is een naoorlogse woonwijk in het westen van Maastricht, gebouwd in de jaren 1960. De wijk maakt deel uit van Maastricht-West en telt ongeveer 2.330 inwoners. Het Poortgebouw ligt aan het vernieuwde Terra Cottaplein, dat binnenkort wordt heringericht met onder andere beweeg- en ontmoetingszones, mobiele zitplaatsen en verbindingen met het Kerkplein en het Cruyff Court. De locatie is uitstekend bereikbaar en bevindt zich op loopafstand van diverse supermarkten zoals Albert Heijn, Plus en Jumbo (circa 700-800 meter). De omgeving biedt volop mogelijkheden voor ondernemers en maatschappelijke organisaties die zich willen vestigen in een groeiende en dynamische wijk.
HUURPRIJS
€ 150,00 per m², per jaar (te vermeerderen met de geldende BTW).
SERVICEKOSTEN
Niet van toepassing.
Huurder is zelf verantwoordelijk voor het afsluiten van contracten met betrekking tot nutsvoorzieningen.
BESTEMMING
De bestemming van dit object is ‘Centrum’. Voor meer informatie verwijzen wij u graag naar de website van het Omgevingsloket.
ZEKERHEIDSSTELLING
Een bankgarantie ter grootte van 3 (drie) maanden huur te vermeerderen met de geldende BTW.
HUURINDEXATIE
De huurprijs zal jaarlijks per 1 juli worden verhoogd op basis van de consumentenprijsindex (CPI), zoals wordt gepubliceerd door het Centraal Bureau voor de Statistiek (CBS).
HUUROVEREENKOMST
De huurovereenkomst zal zijn gebaseerd op het recente model zoals is vastgesteld door de Raad voor Onroerende Zaken (ROZ), inclusief de algemene bepalingen.
OPLEVERING
In casco staat;
Ruimte I (circa 189 m²) circa zomer 2026 / ruimte II (circa 51 m²) circa winter 2026.
Bereikbaarheid
- Potteriestraat 2 min. lopen
- Gewantmakersdreef-Noord 6 min. lopen
- Winkelcentrum/Belfort 8 min. lopen
- Dousbergweg/Via Regia 9 min. lopen
- Dousberg 9 min. lopen