Resultaten laden ...

Groot Ypelaardreef 10 224 m2 zorg te huur in Breda

Kenmerken

Huurprijs Prijs op aanvraag
Functie Zorg
Onderhoud buiten Uitstekend
Onderhoud binnen Uitstekend
Wijk / Buurt Ypelaar

Nieuwbouwproject YPEL

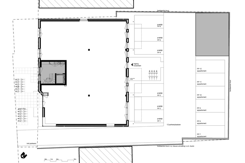
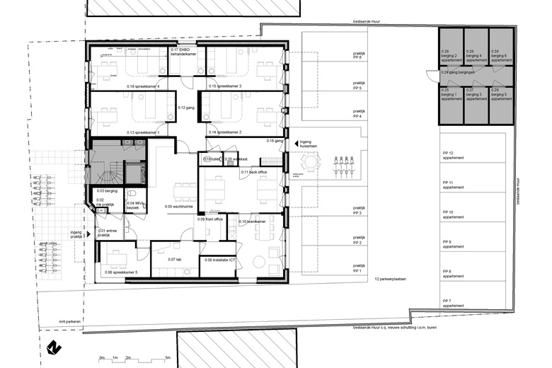
Een kleinschalig en eigentijds nieuwbouwcomplex ‘YPEL’ in de gewilde wijk IJpelaar, in het zuiden van Breda. Het project omvat een modern gezondheidscentrum én zes hoogwaardige koopappartementen, inclusief parkeergelegenheid op eigen terrein.

Gezondheidscentrum

Het gezondheidscentrum beslaat circa 224 m² netto vloeroppervlak en beschikt over een aangrenzende buitenruimte met zes eigen parkeerplaatsen. Het pand wordt flexibel aangeboden: zowel casco als turnkey oplevering behoren tot de mogelijkheden, de indeling en afwerking zijn volledig af te stemmen op de wensen van de eindgebruiker of huurder.

Beschikbaarheid en voorwaarden

Het object wordt zowel te huur als te koop aangeboden. Prijsstelling en contractuele voorwaarden zijn op aanvraag beschikbaar.

Oppervlakte

Gezondheidscentrum 224 m2 netto vloeroppervlak, geheel vrij in te delen.

Ligging en bereikbaarheid

Het pand is gelegen aan de rand van woonwijk “IJpelaar” in Breda-Zuid en is door de ligging vlakbij de zuidelijke rondweg uitstekend bereikbaar vanaf zowel de snelweg A27 als de A16. Op loopafstand, aan de Mathenessestraat, bevindt zich een bushalte.

Parkeren

Zes parkeerplaatsen op eigen terrein. In de directe omgeving vrij parkeren op de openbare weg.

Bestemmingsplan

Maatschappelijke voorziening (en wonen).

Opleveringsniveau

Het pand wordt casco aangeboden zonder voorzieningen. Opleveringsniveau is aan te passen in overleg. Oplevering turn-key behoort tot de mogelijkheden.

Huurcondities

Huurprijs: Op aanvraag.

Huurtermijn: Minimaal 5 jaar.

Servicekosten: Nader te bepalen.

Aanvaarding: In overleg, verwachte oplevering Q3 2026.

Opzegtermijn: 12 maanden.

Zekerheidstelling: Waarborgsom: ter grootte van 3 maanden huur.

Huurindexering: Jaarlijks overeenkomstig het maand prijsindexcijfer volgens het consumentenprijsindexcijfer (CPI) reeks CPI alle huishoudens (2015=100) gepubliceerd door het Centraal Bureau voor de Statistiek (CBS). De huurprijs zal nimmer minder bedragen dan de huurprijs van het voorafgaande jaar. Indexatie voor het eerst 12 maanden na huur ingangsdatum en zo vervolgens jaarlijks.

BTW: Nee, is niet van toepassing.

Koopcondities

Koopprijs: Op aanvraag (V.O.N.)

Zekerheidstelling: Waarborgsom of bankgarantie van 10 % van de koopsom. De koper dient deze 2 weken ná het vervallen van de ontbindende voorwaarden bij de desbetreffende notaris te deponeren.

Aanvaarding: In overleg, verwachte oplevering Q3 2026.

BTW: Nee, is niet van toepassing.

Let op: alle foto's\impressies zijn een indicatie en uiteindelijke vormgeving kan afwijken.

Goedkeuring

Het bovenstaande is onder finaal voorbehoud van de eigenaar.

Disclaimer: Ondanks dat deze publicatie met de grootst mogelijke zorgvuldigheid is samengesteld is de Online Bedrijfsmakelaar BV niet aansprakelijk te stellen voor onjuiste of onvolledige informatie die in deze publicatie vermeld staan. Aan deze gegevens kunnen geen rechten worden ontleend.

====================

Alle beschikbare informatie ontvangen?

Benieuwd naar alle beschikbare informatie over het pand? Vraag dan nu, onder de grote contactbutton, de gratis objectbrochure van de Groot Ypelaardreef 10 in Breda aan en ontvang de objectbrochure binnen 5 minuten in uw mailbox. Uiteraard kunt u ook direct een geheel vrijblijvende bezichtiging met de beheerder van het pand inplannen.

Bereikbaarheid

Tram, bus, metro
  • Blauwe Kei 1 min. lopen
  • Groot IJpelaardreef 5 min. lopen
  • Zwijnsbergenstraat 7 min. lopen
  • Poolseweg 7 min. lopen
  • Mariaplein 8 min. lopen