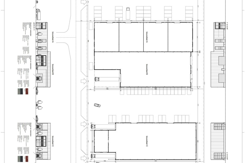
Bekijk alle 22 bedrijfsruimten te huur en te koop in Zeewolde. Bekijk de omschrijving, foto's en plattegronden en vind direct de bedrijfsruimten die u zoekt. Nieuwe bedrijfsruimten in Zeewolde voor jou vind je bij Bedrijfspand.com.
Iedere ondernemer heeft zijn eigen wensen voor de koop of huur van kantoorruimte, winkelruimte of andere bedrijfsruimte in Bedrijfsruimte in Zeewolde. Een werkplek met uitzicht, een winkelpand in dat gezellige straatje of een bedrijfspand met uitstraling. Op Bedrijfspand.com vind je het actuele aanbod in Bedrijfsruimte in Zeewolde en omgeving. Ook voor het zelf verkopen of verhuren van bedrijfsruimte in Bedrijfsruimte in Zeewolde bieden wij een goede oplossing.
© Bedrijfspand.com | Privacy & cookies | Algemene voorwaarden | 57591768 | Teleportboulevard 110, 1043 EJ, Amsterdam