Resultaten laden ...

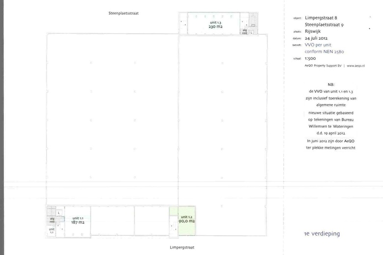
Limpergstraat 8 1.000 - 10.291 m2 bedrijfsruimte te huur in Rijswijk

Kenmerken

Huurprijs € 75,- m²/jaar excl. btw
Functie Bedrijfsruimte
Onderhoud buiten Goed
Onderhoud binnen Goed
Wijk / Buurt Plaspoelpolder
Bedrijventerrein Plaspoelpolder

Bereikbaarheid

Tram, bus, metro
  • Patentlaan 4 min. lopen
  • Handelskade 6 min. lopen
  • 's-Gravenmade 9 min. lopen
  • Paulus Potterlaan 10 min. lopen
  • Broekpolder 10 min. lopen