Lindeplein 5 335 m2 horeca te koop in Brunssum
Kenmerken
| Functie | Horeca |
| Wijk / Buurt | Achter de Put |
| Bouwjaar | 2025 |
| Energielabel | Onbekend |
Omschrijving
Omschrijving
Te koop
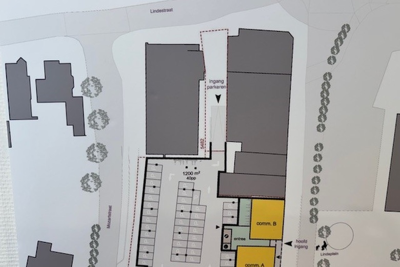
Twee commerciële ruimten van resp. ca. 150 en 185m2 in binnenstad Brunssum
Brunssum is een veelzijdige gemeente waar stedelijk comfort en landelijke charme samenkomen. Met het levendige Lindeplein en het groene Vijverpark biedt de omgeving volop mogelijkheden om te ontspannen en te genieten.
In een nieuw te realiseren plan aan het stijlvolle Lindeplein herrijst een duurzaam appartementengebouw waar aan de begane grond twee commerciële ruimten te koop zijn welke uitermate goed inzetbaar zijn voor een kwalitatief hoogwaardige horeca-invulling.
Oplevering begin 2027.
Nadere informatie uitsluitend via HAZ.
Bereikbaarheid
Tram, bus, metro
- Lindeplein 1 min. lopen
- Koutenveld 3 min. lopen
- Busstation 7 min. lopen
- Rumpenerstr/Bodemplein 8 min. lopen
- Prins Hendriklaan/Bodemplein 9 min. lopen