Christiaan De Wetstraat 114 34 m2 kantoorruimte te huur in Amsterdam
Kenmerken
| Functie | Kantoorruimte |
| Wijk / Buurt | Transvaalbuurt |
1 eenheid beschikbaar
1 eenheid beschikbaar
- Eenheid
- Oppervlakte
- Huurprijs
- Gebruik
- 1
- 34 m2
- € 273,53 m²/jaar
- Kantoorruimte
| OPPERVLAKTE | 34 m2 |
| HUURPRIJS | € 273,53 m²/jaar |
| GEBRUIK | Kantoorruimte |
Omschrijving
Omschrijving
TE HUUR | Christiaan de Wetstraat 114, Amsterdam
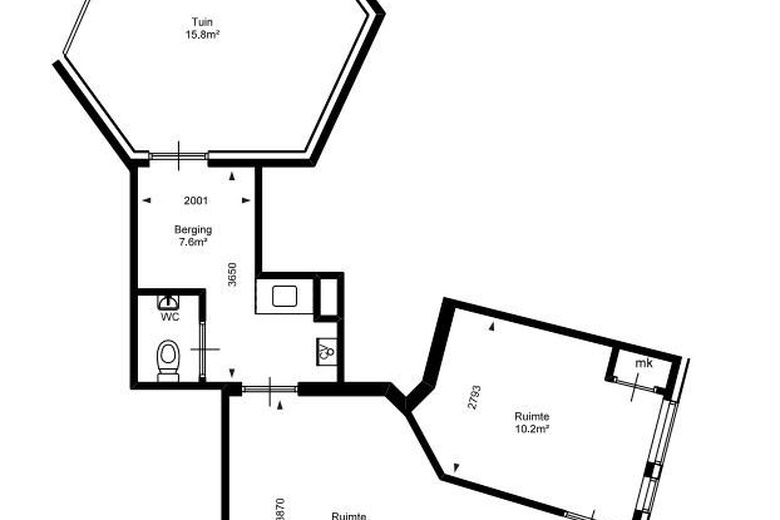
Compacte en praktische kantoor-/bedrijfsruimte met eigen tuintje in het bruisende Amsterdam-Oost.
Op de begane grond van de Christiaan de Wetstraat 114 bevindt zich een bedrijfsruimte van ongeveer 34 m² met een eigen tuintje, perfect voor ondernemers die een inspirerende en functionele werkplek zoeken.
De Christiaan de Wetstraat ligt in de levendige Transvaalbuurt, een karakteristieke wijk in Amsterdam-Oost die bekendstaat om haar diversiteit, gezelligheid en groeiende populariteit onder ondernemers. Hier geniet je van de combinatie van een dynamische buurt en een rustige werkomgeving.
Ruimte en indeling
De bedrijfsruimte is voorzien van grote ramen die zorgen voor veel lichtinval en een uitnodigende uitstraling. De praktische indeling maakt het eenvoudig om de ruimte geheel naar eigen wens in te richten. Met een een oppervlakte van ca. 34 m² verdeeld over 2 ruimtes en een aparte pantry, biedt de Christiaan de Wetstraat flexibiliteit voor verschillende doeleinden.
Omgeving en voorzieningen
De Transvaalbuurt biedt een breed scala aan voorzieningen: van hippe koffiebars en gezellige restaurants tot supermarkten, speciaalzaken en dienstverlenende bedrijven. Het nabijgelegen Oosterpark en de Dappermarkt voegen extra charme toe aan de wijk.
BEREIKBAARHEID
Openbaar vervoer: Tram- en bushaltes bevinden zich op loopafstand. Het Muiderpoortstation ligt op korte afstand, waardoor je een snelle verbinding hebt met andere delen van de stad.
Fiets: De locatie is goed bereikbaar met de fiets; binnen 10 minuten ben je in het centrum.
Auto: De Christiaan de Wetstraat is goed bereikbaar vanaf de ringweg A10.
Parkeren: Betaald parkeren op straat is mogelijk, en er is een vergunningensysteem beschikbaar via de gemeente Amsterdam.
OPLEVERINGSNIVEAU
De ruimte wordt casco opgeleverd. Met aansluitingen voor de nutsvoorzieningen tot in de meterkast.
HUURPRIJS
€ 775,- per maand, te vermeerderen met servicekosten en btw.
SERVICEKOSTEN
Huurder wordt direct belast door de nutsbedrijven. Indien dit om technische of andere redenen niet mogelijk is, zal een nog vast te stellen voorschot worden geheven, waarbij aan het einde van een periode verrekening plaatsvindt op basis van de werkelijke kosten.
HUURBETALING
Maandelijks vooruit te betalen.
HUURTERMIJN
5 (vijf) jaren met een verlengingsoptie van 5 (vijf) jaren; opzegtermijn van 12 (twaalf) maanden. Afwijkende huurtermijnen in overleg.
OPLEVERING
In overleg.
HUURINDEXATIE
De huurprijs wordt jaarlijks geïndexeerd, voor het eerst één jaar na huuringangsdatum, op basis van het prijsindexcijfer volgens de consumentenprijsindex (CPI) reeks Alle Huishoudens (2015 = 100) gepubliceerd door het Centraal Bureau voor de Statistiek (CBS).
HUUROVEREENKOMST
Op basis van het standaard huurcontract, zoals opgesteld door de Raad voor Onroerende Zaken (ROZ) model 2015.
ZEKERHEIDSSTELLING
Een waarborgsom ter hoogte van drie maanden huur, te vermeerderen met BTW + eventuele servicekosten met BTW.
VOORBEHOUD
De vermelde informatie is van algemene aard en is geheel vrijblijvend en is niet meer dan een uitnodiging om in onderhandeling te treden. Aan de inhoud van deze informatie kunnen geen rechten worden ontleend.
Voor informatie
Bereikbaarheid
- Krugerplein 2 min. lopen
- Beukenplein 6 min. lopen
- James Wattstraat 6 min. lopen
- Prins Bernhardplein 9 min. lopen
- Beukenweg 9 min. lopen