Disketteweg 1 3.848 m2 kantoorruimte te huur in Amersfoort
Kenmerken
| Functie | Kantoorruimte |
| Wijk / Buurt | De Hoef-West |
1 eenheid beschikbaar
1 eenheid beschikbaar
- Eenheid
- Oppervlakte
- Huurprijs
- Gebruik
- 1
- 3.848 m2
- € 165,00 m²/jaar
- Kantoorruimte
| OPPERVLAKTE | 3.848 m2 |
| HUURPRIJS | € 165,00 m²/jaar |
| GEBRUIK | Kantoorruimte |
Omschrijving
Omschrijving
ALGEMEEN
Het kantoorgebouw is gelegen op een prachtige zichtlocatie. Het object wordt geheel gerenoveerd conform de meest duurzame eisen, met veel groen op het dak en in de omgeving. Het is een uniek en veelzijdig object op het kantorenpark De Hoef, welk perfect aansluit bij de wensen van moderne bedrijven. Dit pand combineert functionaliteit, bereikbaarheid en representativiteit en is uitermate geschikt voor diverse zakelijke doeleinden.
LOCATIE
Het gebouw bevindt zich op een locatie aan de rand van het populaire bedrijventerrein “De Hoef”. Het bedrijventerrein bevindt zich in het westelijke kwadrant van het verkeersknooppunt “Hoevelaken”, en is zowel met eigen als openbaar vervoer goed bereikbaar.
BEREIKBAARHEID
Auto:
Vanaf de rijkswegen A1 en A28 is het object eenvoudig via doorgaande wegen binnen 8 minuten te bereiken. Rondom het object is er voldoende parkeergelegenheid.
Openbaar vervoer:
Uitstekende bereikbaarheid met het openbaar vervoer. Op 1 minuut loopafstand is het NS-station “Amersfoort Schothorst”. Bij het station stoppen diverse bussen die een regelmatige dienstregeling onderhouden naar alle delen van de stad.
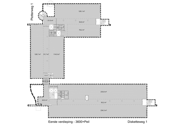
VLOEROPPERVLAKTE
Voor verhuur is beschikbaar een totale oppervlakte van circa 3.847,70 m², verdeeld over:
Gebouw A, Plotterweg 1
Begane grond - circa 659,70 m² v.v.o.
1e verdieping - circa 623,60 m² v.v.o.
2e verdieping - circa 605,90 m² v.v.o.
Totaal: 1.889,20 m² v.v.o.
Gebouw B, Disketteweg 1
Begane grond - circa 688,40 m² v.v.o.
1e verdieping - circa 642,50 m² v.v.o.
2e verdieping - circa 627,60 m² v.v.o.
Totaal: 1.958,50 m² v.v.o.
OPLEVERINGSNIVEAU
In nader overleg.
PARKEREN
Bij het object behoren 70 parkeerplaatsen gelegen op het achter het gebouw gelegen parkeerterrein, alsmede P+R Amersfoort/Station Schothorst.
BESTEMMING
Kantoorruimte. Informatie inzake gebruiksmogelijkheden en voorschriften is te verkrijgen via ons kantoor of bij de gemeente, danwel via de website van ruimtelijke plannen.
ENERGIELABEL
Het kantoorgebouw is bij de oplevering voorzien van Energielabel A.
HUURPRIJS
Kantoor:
€ 165,00 per m² per jaar.
Parkeerplaatsen:
€ 650,00 per parkeerplaats per jaar.
Genoemde bedragen te vermeerderen met BTW..
BTW
Uitgangspunt is een met BTW belaste huurprijs. Indien een huurder niet voldoet aan de voor belaste verhuur gestelde criteria zal de huurprijs zodanig worden verhoogd dat het voor verhuurder ontstane financiële nadeel volledig wordt gecompenseerd.
SERVICEKOSTEN
Een voorschot bedrag van € 50,00 per m² per jaar, te vermeerderen met de wettelijke verschuldigde BTW. Door Verhuurder te verzorgen leveringen en diensten:
• gasverbruik inclusief vastrecht;
• elektriciteitsverbruik inclusief vastrecht ten behoeve van de installaties en de verlichting van de gemeenschappelijke ruimten;
• elektriciteitsverbruik inclusief vastrecht ten behoeve van de installaties en de verlichting van de gemeenschappelijke ruimten, alsmede van de gehuurde ruimten indien geen rechtstreekse aansluiting met het energiebedrijf is gerealiseerd;
• waterverbruik inclusief vastrecht;
• onderhoud en periodieke controle van:
- liftinstallatie;
- verwarming- en/of luchtbehandelingsinstallatie;
- slagboominstallatie;
• onderhoud terrein, tuinen;
• schoonmaak beglazing buitenzijde en/of terrein;
• assurantiepremie buitenbeglazing;
• administratiekosten (thans 5%) over de leveringen en diensten, te verhogen met de wettelijk verschuldigde BTW.
Verhuurder is bevoegd na overleg met Huurder de hierboven genoemde levering van zaken en diensten naar soort en omvang te wijzigen of te laten vervallen.
HUURTERMIJN
In overleg, 10 (tien) jaar met aansluitende verlengingsperioden van telkens 5 (vijf) jaar.
OPZEGTERMIJN
12 maanden.
HUURBETALING
De huur en het voorschot servicekosten, te vermeerderen met BTW, per kwartaal vooruit.
ZEKERHEIDSSTELLING
Een bankgarantie, model ROZ 2018, of waarborgsom ter grootte van drie maanden huurpenningen en servicekosten, te vermeerderen met BTW.
HUURINDEXATIE
De huurprijs zal jaarlijks, voor het eerst 1 jaar na de huuringangsdatum, worden verhoogd op basis van de consumentenprijsindex (CPI) zoals wordt gepubliceerd door het Centraal Bureau voor de Statistiek (CBS).
HUUROVEREENKOMST
De huurovereenkomst zal zijn gebaseerd op het model zoals is vastgesteld door de Raad voor Onroerende Zaken (ROZ) 2015, inclusief de algemene bepalingen.
AANVAARDING
In overleg.
DISCLAIMER
Foto's in de brochure zijn een impressie, hier kunnen geen rechten aan ontleend worden.
Bereikbaarheid
- Schothorst 2 min. lopen
- Zielhorsterweg 3 min. lopen
- OV bushalte, Sara Burgerhartsingel 3 min. lopen
- Valkenhorst 5 min. lopen
- Trompetstraat 6 min. lopen