Industrieweg 14 146 m2 kantoorruimte te huur in Zoetermeer
Kenmerken
| Bedrijfshal in units vanaf | 146 m2 |
| Aantal bouwlagen | 1 |
| Functie | Kantoorruimte |
| Wijk / Buurt | Rokkehage |
| Bedrijventerrein | Rokkehage |
1 eenheid beschikbaar
1 eenheid beschikbaar
- Eenheid
- Oppervlakte
- Huurprijs
- Gebruik
- 1
- 146 m2
- € 82,00 m²/jaar
- Kantoorruimte
| OPPERVLAKTE | 146 m2 |
| HUURPRIJS | € 82,00 m²/jaar |
| GEBRUIK | Kantoorruimte |
Omschrijving
Omschrijving
Te huur kantoorunits
Industrieweg 14A-N, Zoetermeer
ALGEMEEN
De Industrieweg 14A-N is gesitueerd op het overzichtelijke bedrijventerrein Rokkehage (wijk 12) te Zoetermeer. Zowel vanuit het centrum als vanaf Rijksweg A-12 is het pand goed bereikbaar via respectievelijk de Oranjelaan en de Bleiswijkseweg, mede door de directe ontsluiting naar de Oostweg. Hier zijn nog 3 kantoorunits met ruime parkeergelegenheid op eigen terrein voor verhuur beschikbaar.
KADASTRALE GEGEVENS
Gemeente : Zegwaard
Sectie : E
Nummer : 1032 (gedeeltelijk)
Bouwjaar: 1960
BESTEMMING
De bestemming van de Industrieweg 14A-N is 'bedrijventerrein'.
Planstatus : Onherroepelijk (20-09-2013).
Overheid: Gemeente Zoetermeer.
Enkelbestemming : Bedrijventerrein.
Categorie : Bedrijf tot en met categorie 3.2.
Maatvoering : Maximum bouwhoogte is 15 m¹.
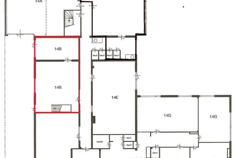
INDELING
Momenteel zijn de volgende kantoorunits beschikbaar:
Begane grond
Huisnummer : 14B
Oppervlakte* : 57 m² kantoor + 105 m² kelder (zonder daglicht)
Huurprijs** : € 7.750,-
1e verdieping
Huisnummer : 14N
Oppervlakte* : 146 m²
Huurprijs** : € 11.940,-
Huisnummer : 14K
Oppervlakte* : 55 m²
Huurprijs** : € 4.675,-
* de oppervlakte van de kantoorruimte is inclusief toerekening van de algemene ruimten (entree, gangen, toiletten, etc.): + ca. 21%
** huurprijs per jaar, exclusief BTW.
Ruim parkeergelegenheid op eigen terrein.
OPLEVERINGSNIVEAU
De kantoorunits worden opgeleverd met onder andere de volgende voorzieningen:
- systeemplafonds + verlichtingsarmaturen
- vloerbedekking
- radiatoren
- pantry (gemeenschappelijk)
- toiletten (gemeenschappelijk)
- glasvezelaansluiting tot in de meterkast.
HUURCONDITIES
Huurtermijn : in overleg
Huuringangsdatum : in overleg; op korte termijn mogelijk
Huurbetaling : per maand vooruit
Huurprijsindexatie : de huurprijs wordt jaarlijks geïndexeerd op basis van het Consumenten Prijsindexcijfer (CPI), reeks Alle huishoudens (2015=100) van het CBS. Voor het eerst een jaar na de huuringangsdatum
Servicekosten : de servicekosten van de Industrieweg 14A-N bedragen € 35,- per m² kantoorruimte per jaar excl. BTW als voorschot voor de kosten van onder andere:
- levering gas, water en elektriciteit
- onderhoud installaties
- onderhoud buitenterrein
- schoonmaken algemene ruimten
- vuilafvoer.
Servicekosten (voorschot) voor bijbehorende kelderruimte bedragen € 10,- per m² per jaar; voor Industrieweg 14B in totaal derhalve € 306,25 excl. BTW per maand.
Bankgarantie : ter grootte van een betalingsverplichting van 3 maanden huur + servicekosten + BTW
Contract : model door de Raad voor Onroerende Zaken (ROZ) op 5 maart 2025 vastgesteld en het model is tevens gepubliceerd op de website . inclusief aanvullende bepalingen verhuurder.
Voorbehoud : goedkeuring directie verhuurder/ positief bedrijfsinformatierapport; ter beoordeling van verhuurder.
BTW
Verhuurder wenst te opteren voor BTW-belaste huur en verhuur. Ingeval huurder de BTW niet kan verrekenen zal de huurprijs worden verhoogd ter compensatie van de gevolgen van het vervallen van de mogelijkheid om te opteren voor BTW-belaste huur.
Energielabel : B
Algemeen : de informatie betreffende de kantoorunits aan de industrieweg 14A-N te Zoetermeer is met zorg samengesteld. Voor de juistheid daarvan kan door Hopman en Schreuder Bedrijfshuisvesting BV geen aansprakelijkheid worden aanvaard, noch kan aan de vermelde gegevens enig recht worden ontleend. Alle opgegeven oppervlakten en afmetingen zijn indicatief. Deze informatie dient slechts als uitnodiging om in onderhandeling te treden en kan derhalve niet worden beschouwd als een aanbod of offerte. Van toepassing zijn de NVM voorwaarden.
Bereikbaarheid
- Zilverstraat 6 min. lopen
- Werner von Siemensstraat 8 min. lopen