Resultaten laden ...

Randstad 21 39 668 m2 kantoorruimte te koop in Almere

Kenmerken

Advertentie type Beleggingspand
Prijs € 1.150.000 k.k.
Functie Kantoorruimte
Wijk / Buurt Randstad
Bedrijventerrein RANDSTAD

OBJECT

Aan de Randstad in Almere Stad bieden wij twee aan elkaar geschakelde en volledig verhuurde kantoorvilla’s aan, gelegen op eigen grond en voorzien van een brede gemengde bestemming. Het object bestaat uit twee zelfstandige kantoorvilla’s met ieder drie bouwlagen en is geschikt voor de lange termijn belegger die op zoek is naar stabiele huurinkomsten, maar ook voor beleggende ontwikkelaars die waarde zien in de toekomstige gebiedsontwikkeling en flexibiliteit van gebruik. Het object genereert momenteel een aantrekkelijke bruto aanvangsrendement van circa 7,9% en biedt daarnaast perspectief voor herpositionering, functiewijziging of (her)ontwikkeling binnen een gebied dat de komende jaren een duidelijke transformatie zal doormaken.

BOUWJAAR/BOUWPERIODE

1995.

LOCATIE

Het object is gelegen op bedrijventerrein Randstad, in het dynamische hart van Almere Stad. Deze locatie combineert een uitstekende bereikbaarheid met een stedelijke omgeving die volop in ontwikkeling is. De bereikbaarheid is uitstekend. Snelweg A6 is binnen circa 5 minuten te bereiken en NS-station Almere Centrum bevindt zich op slechts enkele minuten loopafstand. Ook voorzieningen in het centrum van Almere zijn direct nabij. Almere Stad ontwikkelt zich in hoog tempo tot een volwaardige stedelijke kern binnen de noordelijke Randstad. Voor het Randstad-gebied wordt ingezet op een meer gemengd stedelijk milieu, waarin wonen, werken en maatschappelijke voorzieningen samenkomen. Dit versterkt niet alleen de aantrekkelijkheid van de locatie, maar onderstreept ook de strategische waarde van het object op de (middel)lange termijn.

KADASTRALE GEGEVENS

Gemeente Almere, sectie O, nummers 5132 en 5133,

Perceeloppervlakten 377 m² en 336 m² (totaal 713 m²), volledig eigendom

BESTEMMINGSPLAN

• Bestemmingsplan: Randstad

• Bestemming: Gemengd (o.a. dienstverlening, kantoren en praktijkruimten)

• Bouwhoogte: max. 15 meter

• Maximale bebouwing: 70%

Deze brede gemengde bestemming biedt flexibiliteit in gebruik en maakt het object interessant voor zowel voortzetting van het huidige gebruik als voor toekomstige herontwikkeling of herpositionering, passend binnen de beoogde gebiedsvisie.

ENERGIELABEL

• Nummer 21-39: energielabel A (geldig tot 30-06-2031).

• Nummer 21-39A: energielabel C (geldig tot 30-06-2031).

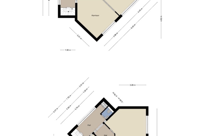
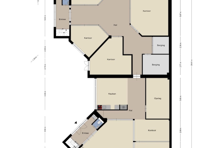
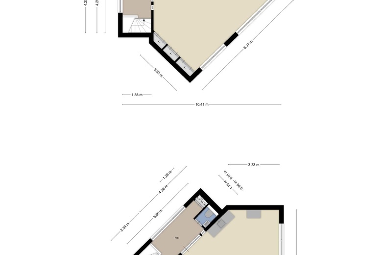
VLOEROPPERVLAKTE

Randstad 21-39

• Begane grond: ca. 220 m²

• 1e verdieping: ca. 70 m²

• 2e verdieping: ca. 70 m²

• Totaal: ca. 360 m² v.v.o.

Randstad 21-39A

• Begane grond: ca. 168 m²

• 1e verdieping: ca. 70 m²

• 2e verdieping: ca. 70 m²

• Totaal: ca. 308 m² v.v.o.

Totaal circa 668 m² kantoorruimte

Er is een NEN 2580 meetrapport aanwezig.

PARKEREN

Op eigen terrein zijn circa 5 parkeerplaatsen aanwezig. Daarnaast is er ruim voldoende openbare parkeergelegenheid op het bedrijventerrein.

VOORZIENINGEN

Het object wordt aangeboden in de huidige staat (“as is, where is”), onder gestanddoening van de lopende huurovereenkomst, en is onder andere voorzien van:

• Representatieve en lichte entree

• Diverse kantoor- en vergaderruimten verdeeld over drie bouwlagen

• Aansluitingen voor elektra en data

• Te openen ramen met ventilatieroosters en extra beveiligingssloten

• Cv-installatie met radiatoren

• Airconditioning per ruimte (koelen en verwarmen)

• Gestuukte plafonds met verlichtingsarmaturen

• Toiletgroepen per bouwlaag

• Luxe keuken voorzien van spoelbak, close-in boiler en koel-/vriescombinatie

• Buitenruimte bereikbaar via schuifpui

• Brandveiligheidsvoorzieningen

NUTSVOORZIENINGEN

Het object beschikt over aansluitingen voor gas, water en elektra (3x25A). Er is een glasvezelaansluiting aanwezig.

HUURGEGEVENS

Het object is volledig verhuurd tot en met 30 november 2026 en genereert een stabiele jaarhuur van € 90.829,84 exclusief BTW (circa 7,9% op basis van de vraagprijs).

VRAAGPRIJS

€ 1.150.000,- kosten koper

KOOPVOORWAARDEN

• BTW: de verkoop is vrijgesteld van BTW.

• Zekerheidsstelling: waarborgsom ter grootte van 10% van de koopsom te voldoen bij de notaris binnen twee weken na ondertekening van de koopovereenkomst.

• Notaris: ter keuze van koper.

• Erfdienstbaarheden, kwalitatieve bedingen en/of bijzondere verplichtingen: zoals vermeld in de eigendomsakte (op aanvraag beschikbaar).

• Aanvaarding/oplevering: in overleg, per direct mogelijk.

VERKOOPPROCES

1. Na bekendmaking van uw interesse ontvangt u een geheimhoudingsverklaring (NDA).

2. Na ontvangst van de getekende NDA worden de relevante verkoopdocumenten beschikbaar gesteld.

3. Bezichtigingen zijn, gezien de huidige verhuursituatie, uitsluitend mogelijk na ontvangst van een concrete bieding op basis van de verstrekte verkoopdocumentatie, screening van de kandidaat-koper en goedkeuring door verkoper.

4. Biedingen dienen per e-mail te worden uitgebracht en ten minste te bevatten: gegevens van de koper, koopsom kosten koper en de gewenste passeerdatum. Onvoorwaardelijke biedingen hebben de voorkeur, waarbij eventuele voorbehouden bespreekbaar zijn.

VOORBEHOUD

Definitieve goedkeuring en gunning door verkoper.

DISCLAIMER

De vermelde informatie is van algemene aard en is niet meer dan een uitnodiging om in onderhandeling te treden. Bezichtigingen vinden uitsluitend op afspraak plaats. Aan de inhoud van deze zorgvuldig samengestelde informatie kunnen geen rechten worden ontleend.

Bereikbaarheid

Tram, bus, metro
  • Markerkant 7 min. lopen
  • Staatsliedenwijk 8 min. lopen
  • Busstation, Haltes O, P, en Q 8 min. lopen
  • Uitstaphalte Busstation,Haltes O,P,Q 8 min. lopen
  • Station Centrum 9 min. lopen

Bijlagen

De aanbieder van dit object heeft een PDF Brochure beschikbaar gesteld.

Vraag brochure aan