Waarderweg 19 I 18 - 2.000 m2 kantoorruimte te huur in Haarlem
Kenmerken
| Huurprijs | Prijs op aanvraag |
| Functie | Kantoorruimte |
| Onderhoud buiten | Goed |
| Onderhoud binnen | Goed |
| Wijk / Buurt | Waarderpolder |
| Bedrijventerrein | Waarderpolder |
1 eenheid beschikbaar
1 eenheid beschikbaar
- Eenheid
- Oppervlakte
- Huurprijs
- Gebruik
- 1
- Vanaf 18 m2 tot 2.000 m2
- Prijs op aanvraag
- Kantoorruimte
| OPPERVLAKTE | Vanaf 18 m2 tot 2.000 m2 |
| GEBRUIK | Kantoorruimte |
Omschrijving
Omschrijving
Business Plaza Haarlem – Dé inspirerende en centraal gelegen werkomgeving voor ondernemers
Bent u op zoek naar een dynamische werkomgeving waar u productief kunt werken én in contact staat met andere ondernemers? Dan is **Business Plaza Haarlem** de ideale plek voor u. Dit moderne en multifunctionele kantoorgebouw biedt uitstekende faciliteiten, razendsnel internet, rustige vergaderruimtes en sfeervolle flexwerkplekken. De centrale ligging en de aanwezigheid van ondernemers uit uiteenlopende branches zorgen voor een inspirerende sfeer die bijdraagt aan de groei van uw onderneming.
Centraal gelegen
Bespaar waardevolle reistijd met een werkplek op een strategische locatie. Business Plaza Haarlem ligt op slechts 2 minuten rijden van de A200. Bovendien beschikt het pand over 50 eigen parkeerplaatsen.
De locatie bevindt zich in de Waarderpolder, op ongeveer 12 minuten loopafstand van station Haarlem-Spaarnwoude. Ook buslijn 15 verbindt u eenvoudig met het centrum en station Haarlem.
Ondernemen in een bruisende community
Bij Business Plaza Haarlem draait het om meer dan alleen werkruimte. U komt terecht in een levendige community van circa 75 collega-ondernemers. Deze diversiteit aan bedrijven onder één dak maakt samenwerking, kennisdeling en netwerkuitbreiding eenvoudig. Heeft u een opdracht over? Schakel uw buurman in. Even geen werk? Drink een kop koffie met een medegebruiker – wie weet wat daaruit ontstaat.
In de sfeervolle co-workclub werkt u samen aan grote tafels, waar spontane gesprekken en ideeënuitwisselingen plaatsvinden. Deze setting stimuleert creativiteit en samenwerking. Uiteraard zijn er ook stille werkplekken beschikbaar voor wie zich wil concentreren.
Daarnaast organiseert Business Plaza Haarlem met regelmaat workshops en lezingen over uiteenlopende en relevante thema’s voor ondernemers.
Volledige voorzieningen
Business Plaza Haarlem biedt alles wat u nodig heeft als ondernemer:
Gratis WiFi;
Gratis parkeren;
Goed bereikbaar;
Electrische laadpunten;
Comfortabele vergaderruimtes;
Gezamenlijke lunch in de co-workclub;
Recreatiegebied de Veerplas op loopafstand;
Diverse horecagelegenheden in de buurt, waaronder een broodjeszaak en restaurants aan de Veerplas.
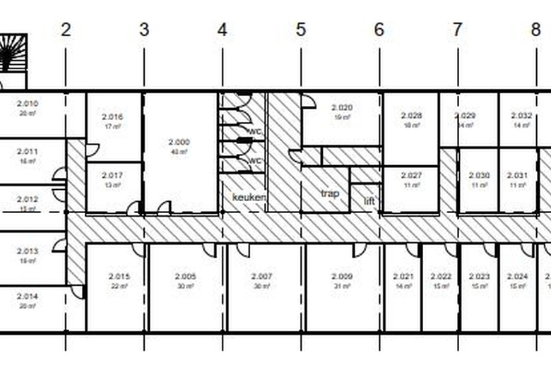
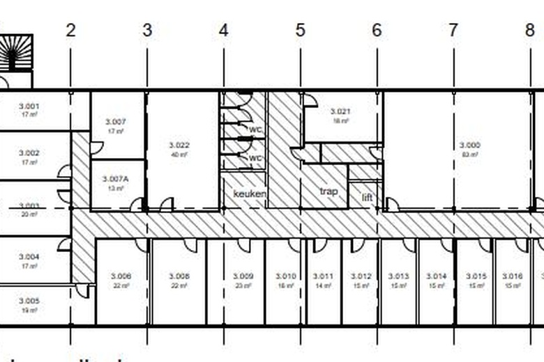
Ruimtes
Er zijn diverse ruimtes beschikbaar met diverse metrages. De minimale huurprijzen zijn €310,- exclusief btw per maand.
Wilt u langskomen of een keer proefwerken in onze inspirerende omgeving? Neem gerust contact met ons op!
Bereikbaarheid
- Nijverheidsweg 8 min. lopen
- J.W. Lucasweg 8 min. lopen
- Emrikweg 9 min. lopen