Beijneslaan 171 141 m2 winkelruimte te huur in Beverwijk
Kenmerken
| Huurprijs | € 2.350 /maand |
| Functie | Winkelruimte |
| Onderhoud buiten | Uitstekend |
| Onderhoud binnen | Uitstekend |
| Wijk / Buurt | Beijnes |
1 eenheid beschikbaar
1 eenheid beschikbaar
- Eenheid
- Oppervlakte
- Huurprijs
- Gebruik
Eenheid omschrijving
TE HUUR - EEN STRATEGISCHE LOCATIE MET MOGELIJKHEDEN
Welkom op Beijneslaan 171. Hier aan het vernieuwde Marloterrein, rijst de imposante Beijnestoren. Dit gebouw wordt momenteel gebouwd en is volledig anno nu. Hier komt een prachtige ruimte die in te vullen is als kantoor, als winkel of als gezondheidsruimte. Er zijn dus volop mogelijkheden op deze gloednieuwe locatie.
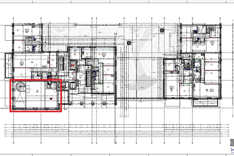
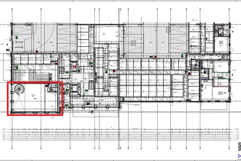
Deze commerciële ruimte van ca. 165 m² BVO bestaat uit een begane grond en een eerste verdieping. Dankzij de hoekligging is er veel daglichtinval, wat niet alleen zorgt voor een prettige werkomgeving, maar ook jouw zichtbaarheid naar buiten versterkt. De representatieve uitstraling maakt deze unit geschikt voor uiteenlopende doeleinden.
Bij binnenkomst voel je het meteen: ruimte, licht, en mogelijkheden. De ruimte is uiteraard voorzien van een meterkast en wordt casco opgeleverd inclusief toilet. Ideaal om jouw ondernemersdroom te realiseren. Denk aan een hippe boetiekfitness, een moderne kantoorruimte of een stijlvol ingerichte winkel.
De duurzaamheid van het gebouw is niet alleen goed voor het milieu, maar ook voor je energierekening.
Met HR++ beglazing, volledig geisoleerd en een aansluiting op een WKO-installatie, is dit pand helemaal klaar voor de toekomst.
En dan de bereikbaarheid: je zit hier perfect. De A22 en Station Beverwijk ligt om de hoek. Voor medewerkers, klanten en leveranciers is dat een absolute plus. Parkeren? Geen probleem. Het Marloterrein biedt ruim voldoende gratis parkeergelegenheid.
Deze plek spreekt niet alleen het oog aan, maar ook het verstand: dankzij de flexibele bestemmingsmogelijkheden kun jij hier precies dat realiseren wat past bij jouw visie.
Oplevering Q2 2026
KLAAR VOOR DE VOLGENDE STAP?
Laat je inspireren door de kansen die deze ruimte biedt en richt hem volledig naar eigen wens in.
De ruimte wordt casco verhuurd voor € 2.350,- per maand exclusief BTW
Wacht niet tot anderen je voor zijn. Neem vandaag nog contact met ons op en ontdek de mogelijkheden van Beijneslaan 171 in Beverwijk.
Informatie huurovereenkomst
- Huur € 2.350,- per maand, te vermeerderen met BTW;
- Huurtermijn van 5 + 5 jaar;
- Servicekosten nader te bepalen
- Huurbetaling geschiedt per kwartaal bij vooruitbetaling;
- Huurovereenkomst conform het standaardmodel van de Raad van Onroerende Zaken (ROZ) met algemene bepalingen en bijzondere bepalingen vanuit verhuurder;
- Indexering jaarlijks op basis van het indexcijfer volgens consumentenprijsindex (CPI) reeks Alle Huishoudens (2006 = 100), gepubliceerd door het Centraal Bureau voor Statistiek (CBS);
- Zekerheidsstelling is een waarborgsom ter grootte van drie maanden huurverplichting
VOORWAARDEN
Alle door Teer Bedrijfsmakelaars verstrekte informatie kan uitsluitend gezien worden als een uitnodiging tot nader overleg c.q. tot het uitbrengen van een bod. Hoewel gestreefd is naar een zo zorgvuldig mogelijke weergave van de beschikbare gegevens, moet er van worden uitgegaan dat bovenstaande slechts indicatief is. De gegevens (bedragen, jaartallen, omschrijvingen, etc.) kunnen zijn verkregen door mondelinge overdracht. Een kandidaat huurder/koper heeft zijn eigen onderzoek plicht naar alle zaken die voor hem van belang zijn.
| OPPERVLAKTE | 141 m2 |
| GEBRUIK | Winkelruimte |
Omschrijving
Omschrijving
TE HUUR - EEN STRATEGISCHE LOCATIE MET MOGELIJKHEDEN
Welkom op Beijneslaan 171. Hier aan het vernieuwde Marloterrein, rijst de imposante Beijnestoren. Dit gebouw wordt momenteel gebouwd en is volledig anno nu. Hier komt een prachtige ruimte die in te vullen is als kantoor, als winkel of als gezondheidsruimte. Er zijn dus volop mogelijkheden op deze gloednieuwe locatie.
Deze commerciële ruimte van ca. 165 m² BVO bestaat uit een begane grond en een eerste verdieping. Dankzij de hoekligging is er veel daglichtinval, wat niet alleen zorgt voor een prettige werkomgeving, maar ook jouw zichtbaarheid naar buiten versterkt. De representatieve uitstraling maakt deze unit geschikt voor uiteenlopende doeleinden.
Bij binnenkomst voel je het meteen: ruimte, licht, en mogelijkheden. De ruimte is uiteraard voorzien van een meterkast en wordt casco opgeleverd inclusief toilet. Ideaal om jouw ondernemersdroom te realiseren. Denk aan een hippe boetiekfitness, een moderne kantoorruimte of een stijlvol ingerichte winkel.
De duurzaamheid van het gebouw is niet alleen goed voor het milieu, maar ook voor je energierekening.
Met HR++ beglazing, volledig geisoleerd en een aansluiting op een WKO-installatie, is dit pand helemaal klaar voor de toekomst.
En dan de bereikbaarheid: je zit hier perfect. De A22 en Station Beverwijk ligt om de hoek. Voor medewerkers, klanten en leveranciers is dat een absolute plus. Parkeren? Geen probleem. Het Marloterrein biedt ruim voldoende gratis parkeergelegenheid.
Deze plek spreekt niet alleen het oog aan, maar ook het verstand: dankzij de flexibele bestemmingsmogelijkheden kun jij hier precies dat realiseren wat past bij jouw visie.
Oplevering Q2 2026
KLAAR VOOR DE VOLGENDE STAP?
Laat je inspireren door de kansen die deze ruimte biedt en richt hem volledig naar eigen wens in.
De ruimte wordt casco verhuurd voor € 2.350,- per maand exclusief BTW
Wacht niet tot anderen je voor zijn. Neem vandaag nog contact met ons op en ontdek de mogelijkheden van Beijneslaan 171 in Beverwijk.
Informatie huurovereenkomst
- Huur € 2.350,- per maand, te vermeerderen met BTW;
- Huurtermijn van 5 + 5 jaar;
- Servicekosten nader te bepalen
- Huurbetaling geschiedt per kwartaal bij vooruitbetaling;
- Huurovereenkomst conform het standaardmodel van de Raad van Onroerende Zaken (ROZ) met algemene bepalingen en bijzondere bepalingen vanuit verhuurder;
- Indexering jaarlijks op basis van het indexcijfer volgens consumentenprijsindex (CPI) reeks Alle Huishoudens (2006 = 100), gepubliceerd door het Centraal Bureau voor Statistiek (CBS);
- Zekerheidsstelling is een waarborgsom ter grootte van drie maanden huurverplichting
VOORWAARDEN
Alle door Teer Bedrijfsmakelaars verstrekte informatie kan uitsluitend gezien worden als een uitnodiging tot nader overleg c.q. tot het uitbrengen van een bod. Hoewel gestreefd is naar een zo zorgvuldig mogelijke weergave van de beschikbare gegevens, moet er van worden uitgegaan dat bovenstaande slechts indicatief is. De gegevens (bedragen, jaartallen, omschrijvingen, etc.) kunnen zijn verkregen door mondelinge overdracht. Een kandidaat huurder/koper heeft zijn eigen onderzoek plicht naar alle zaken die voor hem van belang zijn.
Bereikbaarheid
- Spoorsingel 4 min. lopen
- De Bazaar 8 min. lopen
- Schans 8 min. lopen
- Kennemertheater 9 min. lopen
- Beverhof/Breestraat 9 min. lopen