Resultaten laden ...

Breestraat 87 176 m2 winkelruimte te huur in Beverwijk

Kenmerken

Huurprijs € 2.400 /maand
Functie Winkelruimte
Onderhoud buiten Goed
Onderhoud binnen Goed
Wijk / Buurt Meerplein

EEN KANS DIE JE NIET WILT MISSEN

Een winkelpand dat meteen de aandacht trekt, precies daar waar het gebeurt: Breestraat 87 in hartje Beverwijk. Met een royale winkelvloer, praktische opslagruimte en een opvallende frontbreedte van ruim vijf meter, biedt dit pand winkeliers de perfecte basis om hun onderneming te laten bloeien. Zet jouw merk letterlijk in de schijnwerpers en profiteer van de constante stroom winkelend publiek.

Kom kijken, laat je overtuigen en zie met eigen ogen hoe jouw winkel hier tot leven komt.

HOOFDPIJLERS VAN HET PAND

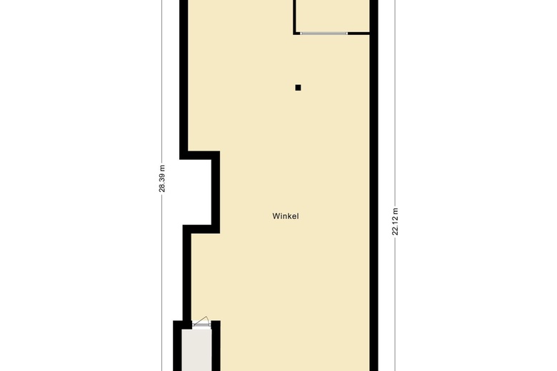
159 m² VVO – slim ingedeeld en volledig benutbaar

Frontbreedte van 5,15 meter – optimale zichtbaarheid en etalagekracht

Royale winkelruimte met aansluitende opslag, pantry, toilet en berging

Toplocatie in het drukste gedeelte van de Breestraat

Midden in het centrum – omringd door sterke retailers en horeca

Multifunctioneel inzetbaar voor diverse winkelconcepten

VOLLEDIGE BESCHRIJVING

Stap binnen en voel direct de ruimte: de hoge plafonds en open indeling zorgen voor een lichte, uitnodigende sfeer waar iedere winkelbeleving tot zijn recht komt. Terwijl je langs de gevel loopt, zie je hoe het brede front voorbijgangers als vanzelf naar binnen trekt – perfect om jouw etalage als visitekaartje van je merk te gebruiken. Binnen wacht een royale winkelruimte die zich soepel laat aanpassen aan uiteenlopende concepten, of je nu een boetiek, speciaalzaak of lifestylewinkel wilt neerzetten.

Achter de winkelvloer tref je een praktische opslag en berging. Handig, want zo houd je de winkelvloer strak en overzichtelijk, terwijl je voorraad toch altijd binnen handbereik is. Het pand ademt gemak en functionaliteit, zonder in te boeten aan uitstraling.

De ligging is zonder twijfel een van de grootste troeven: Breestraat 87 bevindt zich in het kloppend hart van Beverwijk, pal tussen gevestigde namen, levendige horeca en dagelijks terugkerende bezoekersstromen. Je hoort de levendige drukte van winkelend publiek, ruikt de vers gebakken broodjes uit de buurt, ziet de kleurrijke etalages om je heen en voelt de energie van een straat die nooit stil lijkt te staan. Deze mix van reuring en bereikbaarheid maakt het een ideale plek om klanten te inspireren én aan je te binden.

Kortom, dit is een winkelpand dat niet alleen ruimte biedt, maar ook kansen vergroot. Een plek waar ondernemerschap en zichtbaarheid hand in hand gaan.

Wacht niet te lang – maak vandaag nog een afspraak voor een bezichtiging en ontdek hoe jouw toekomst hier vorm krijgt.

VOORWAARDEN

Alle door Teer Bedrijfsmakelaars verstrekte informatie kan uitsluitend gezien worden als een uitnodiging tot nader overleg c.q. tot het uitbrengen van een voorstel en betreft een vrijblijvende aanbieding. Hoewel gestreefd is naar een zo zorgvuldig mogelijke weergave van de beschikbare gegevens, moet er van worden uitgegaan dat bovenstaande slechts indicatief is. De gegevens (bedragen, jaartallen, omschrijvingen, etc.) kunnen zijn verkregen door mondelinge overdracht. Een kandidaat huurder/koper heeft zijn eigen onderzoek plicht naar alle zaken die voor hem van belang zijn.

Neemt u voor nadere informatie en/of het maken van een bezichtigingsafspraak contact met ons op via het telefoonnummer 0251-212102. Wij informeren u graag nader.

Bereikbaarheid

Tram, bus, metro
  • Beverhof/Meerplein 2 min. lopen
  • Beverhof/Breestraat 5 min. lopen
  • Schans 5 min. lopen
  • Zeestraat 7 min. lopen
  • Beverwijk 8 min. lopen

Bijlagen

De aanbieder van dit object heeft een PDF Brochure beschikbaar gesteld.

Vraag brochure aan